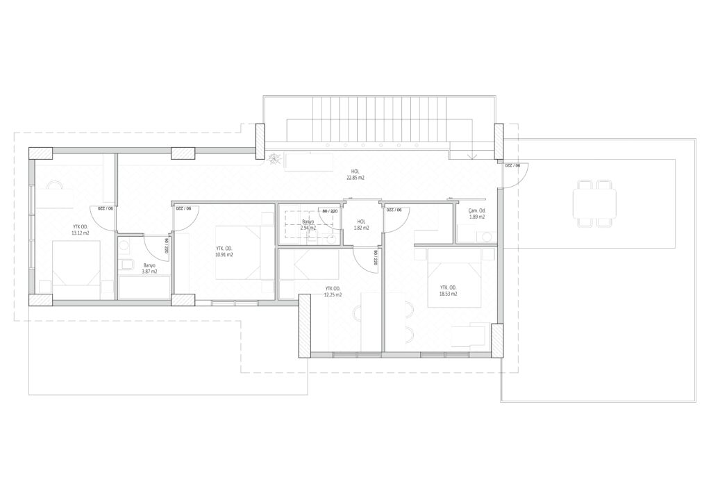
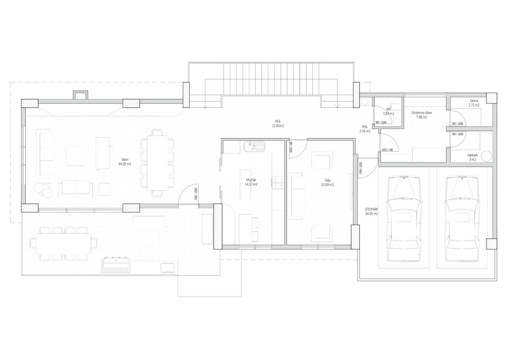
Gül Evi Projesi Yazının yazarı Tasarlayan: Selim Furkan Gül Yazı tarihi 24 Kasım 2025 Yıl: 2025 – Konum: Çanakkale/Kirazlı – Durumu: Tasarım Aşamasında Mimari Tasarım Ön Görünüş ZEMİN KAT PLANI ÜST KAT PLANI