İçeriğe atla
  • Open Instagram in a new tab
  • Open Spotify in a new tab

Studio Gull

  • Ana Sayfa
  • Hakkımızda
  • Hizmetler
  • İletişim

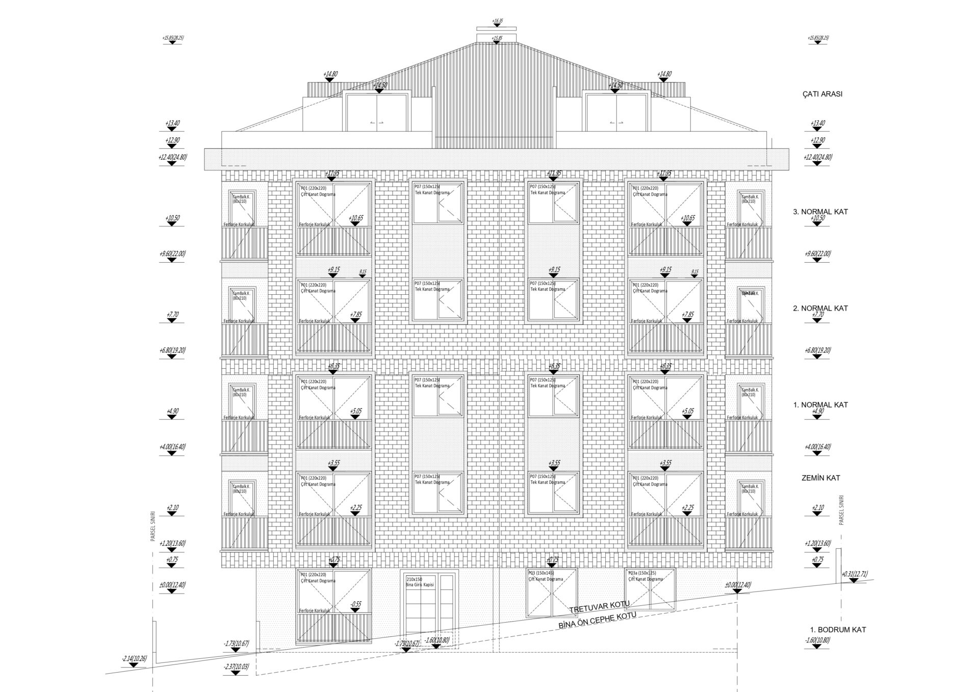
Sır Apartmanı

  • Yazının yazarı Tasarlayan: Selim Furkan Gül
  • Yazı tarihi 4 Haziran 2025

Yıl: 2025 – Konum: Üsküdar/İstanbul – Durumu: Tasarım Aşamasında

Mimari Tasarım - Proje Yönetimi - BIM Entegrasyonu
Visual Portfolio, Posts & Image Gallery for WordPress

Dış Cephe

Ön Görünüş

Sağ Cephe

Arka Cephe

Sol Cephe

  • Ana Sayfa
  • Hakkımızda
  • Hizmetler
  • İletişim
  • Open Instagram in a new tab
  • Open Spotify in a new tab
© 2026  Studio Gull